previous
Next
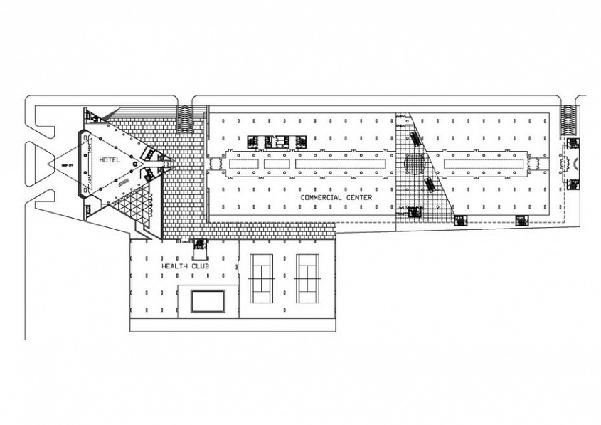
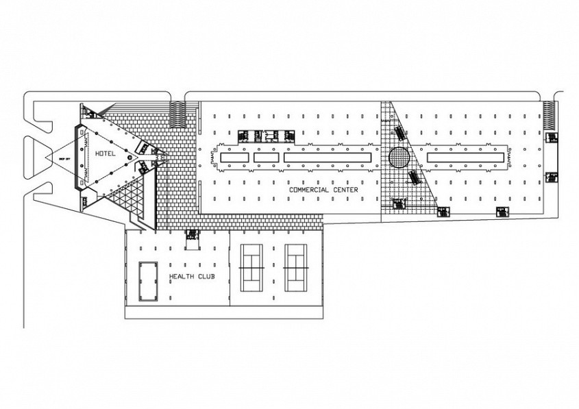
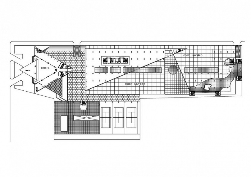
Location: Baku Azerbaijan
Type: Mixed Use
Date: 1998
Phase: Design
BUA: 120,000 m²
Discover our selection of local & international projects