Option 1 - Low Rise
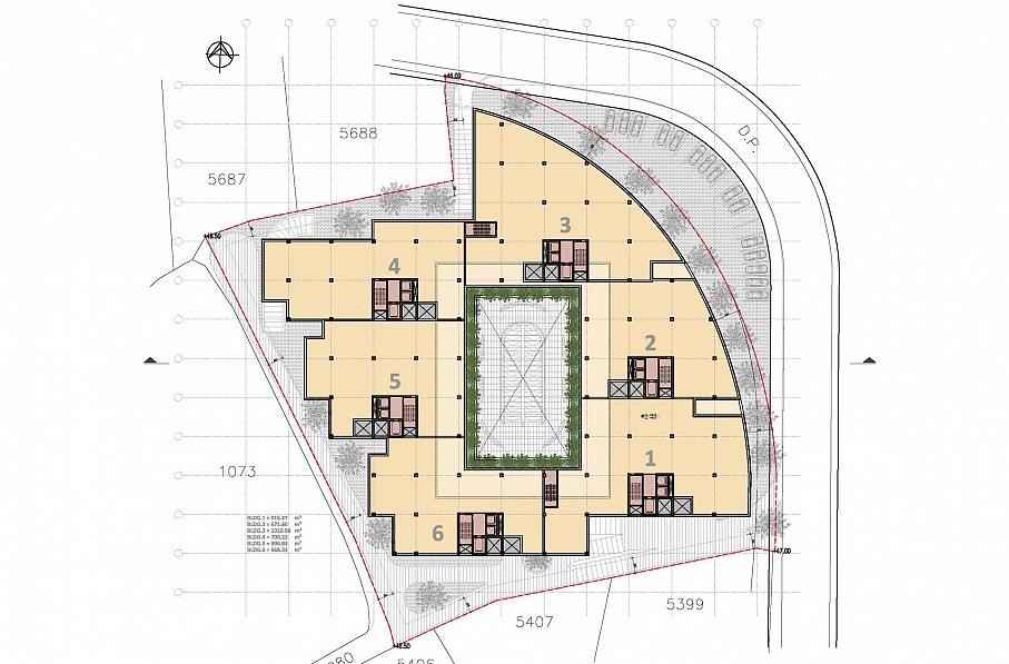
The project is located on an 8,000sqm site, with a planned development of 21,000sqm of offices atop a retail base in Hazmieh.
The first option is one which respects the active building code for the zone and which limits the height to 18m.
In this first option, six independent offices buildings, served by common basements for parking and services make up the project.
We designed an 800sqm central courtyard onto which all balconies overlook, allowing uniformity in the treatment of the elevations there, while the external wrapping skin follows a cost conscious/sustainable approach. It is planned as a patchwork of colored resin panels on top of an externally insulated double wall, perforated with a corresponding pattern of windows. The concept is to allow a ~55% void to solid ratio on the north elevation, dropping down to 30% on the south and west elevations.
The outline of the external most skin was developed with the idea of creating deep perspectives from within the offices, especially for the offices which are not positioned on the main boulevard. The objective was to generate interesting views for the calmer and more secluded offices; the alternative being to build them at the exact setback limit of 3m with the property limit.
The relative depth of the floor plates reaches up to 24m with double sided natural lighting, and is generously supported by a high clearance of 4m per floor, as well as a geometry which would allow eventually the tenant to benefit from an optimized layout of the internal partitioning.
A couple of circulation alternatives were developed with a traffic specialist, which allow either the use of the courtyard as a main drop off or alternatively as a generous pedestrian passage and main garden.
Discover our selection of local & international projects